Lock-S Lift Control

Lock-S Lift Control

Designate card access to assigned floors


Specifications 

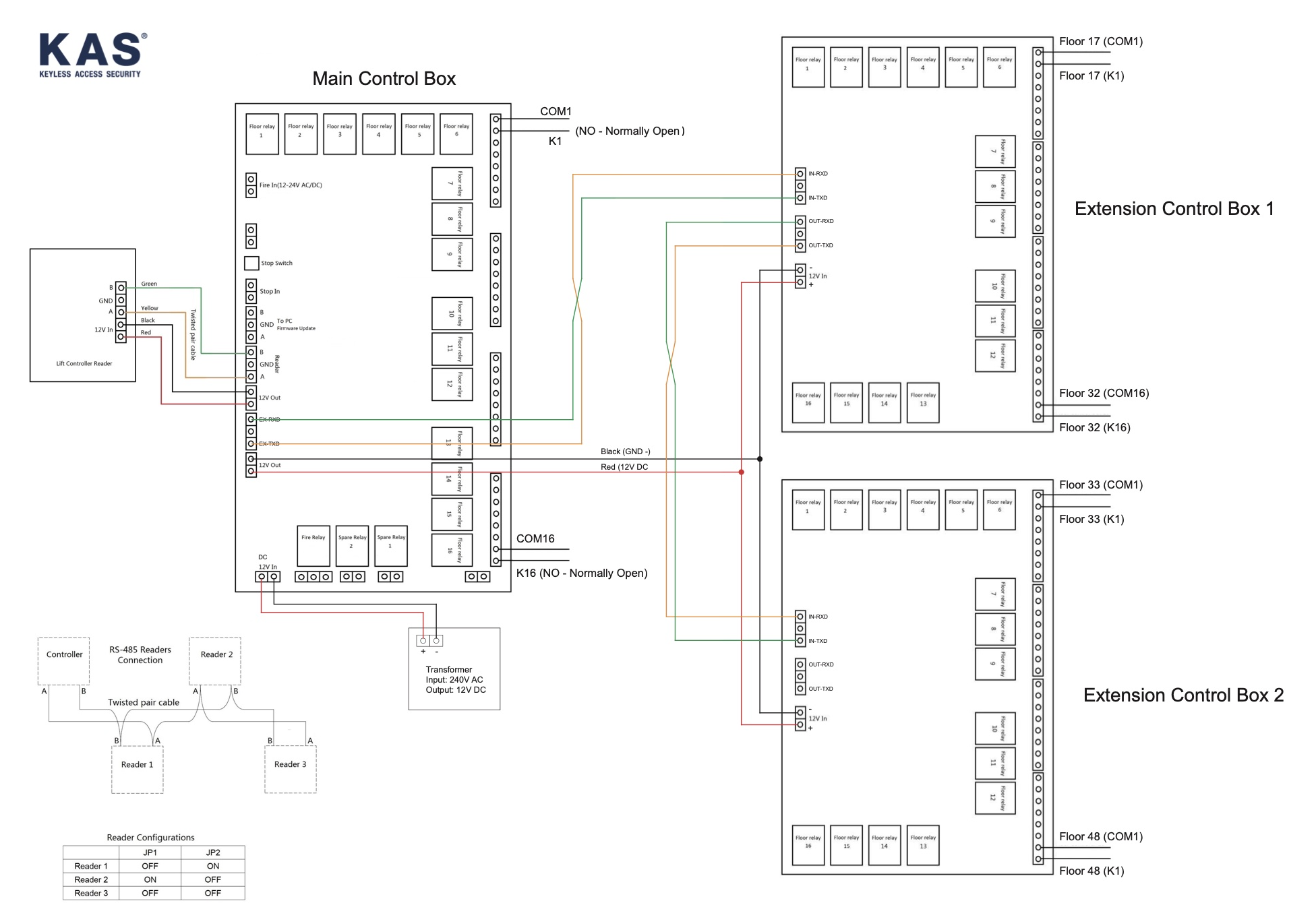
Wiring Diagram





Function
  • Guest cards can only access the permitted floors by swiping the card.
  • Example: If the room is on the third floor, the guest can only reach the third floor.
  • When swiping the card on the reader, the button on the third floor is active only. Then the guest is required to push the third-floor button.
  • The reader is usually installed inside the lift, next to the push buttons.
  • Guest cards program automatically authorise lift access to the floor assigned to the guest room.
  • Select additional lift floors as required during Guest card issuance
  • Default authorise floors: select the floors that every card will allow access. I.e all Guest cards have access to Level 7
  • Default unauthorise floors: select the floors that never allow guest card access. [Staff/Master/Floor/HSKP card will allow floor access]
  • 2 spare relays in each Main Control Box and Extension Control Box for override in case of relay failure.
  • The spare relays can be assigned by parameter card and software programming. If a floor relay on the PCB fails, you can re-assign the failure relay to the spare relay in a matter of minutes.
  • Fire relay: use this relay to control whether all floors are blocked when a signal is received from a third-party control.
  • Lift free passage times: one block of time to allow access for all floors. Outside this time requires swipe card access. i.e daily 9am - 5pm no card swipe is required, card swipe required outside the allocated times. You cannot modify the free passage lift access to days-of-week. Only times-of-day.
  • All Lift control module comes with a NO (normally open) relays.

Power

  • Transformer Input: 240V AC, Output: 12V DC (Transformer supplied certified to Australia regulations RCM tick approval)
  • Main Control Box power: 12V DC ~0.4A
  • Extension Control Box power: 2V DC ~0.4A

Relays

  • Main Control Box: 16 floors (Lift control reader is included in the Main Control Box)
  • Extension Control Box: n * 16 floors
  • Additional Lift Reader: 3 readers max per lift cab

Example: 36 floors - order 1 x Main Control Box and 2 x Extension Control Box = 16 floors + 2 * 16 floors = 48 floors total

Example: 12 floors - order 1 x Main Control Box = 16 floors total

 Maximum floors

  • Maximum Extension Control Box capacity: 3
  • Maximum floors is 16+3*16 = 64 floors

Notes for Installers:

  • Floor assignment is fixed for each module. For example: if you do not need card control for Ground floor, do not skip the ground floor button wiring. I.e Basement 1, Ground, Level 1, Level 2. Wire the lift module with Port 1=>Basement, Port 2=>Ground, Port 3=>Level 1, Port 14=>Level 2. Even though no card is required for Ground, you still must wire the Ground floor button.

 

Main Control Box

Dimensions

L x W x H = 205 mm x 230 mm x 55 mm

Images:



.    




 


Extension Control Box

Dimensions

L x W x H = 205 mm x 230 mm x 55 mm
Note: Main Control Box and Extension Control Box have the same external dimensions.


Programming the Lift Reader and Control boxes

Setup

  • Swipe System Card -> Blue LED -> If Red LED, swipe system card again, or reset Main Control Box
  • Create a 'Lift' on Lock-S Software
  • Swipe Lift Parameter Card to the reader -> Blue LED
  • Test by swiping Master Card -> Green LED -> All Control Box relay's will fire all buttons should be active.

Reset Main Control Box

  • On the DIP Switch panel, toggle number 8 to conduct a factory reset for the module.
  • You will see a Red LED HIGH on the Main Control Box when number 8 is HIGH and Red LED LOW when number 8 is LOW
  • You do not have to reset the Extension Control Box.



 Tips

Installation

1. Equipment of MF card control system in the lift are all mounted on top and inside of the lift car, this system is mainly used to control the floor buttons on the keypad panel inside the lift car.

2. It can strictly control the access floor of each card. When taking the lift, only by swiping the valid card can the guest get to the floor permitted; By setting the address code of the reader, it can give permission to the card user to each lift in different buildings or units, which has solved the limitation of one card only for one lift.

3. It has a convenient function of floor access permission setting and can authorise the access to any floor according to your requirements.

4. The visitor can get a visitor card from the management office, which is set by the manager, and the visitor can take the lift to the floor permitted.

5. The main control box can control 16 floors; Adding an extensive control box, it can control 16-32 floors additionally.

6. MF card elevator floor controller and the elevator system itself are connected by passive contacts, the two are completely isolated, so it will not have any impact on the original performance of the elevator.

7. The lift automatically reverts to its original function state when the controller has encountered a power outage or abnormal situation occurs.

8. It has an emergency switch signal input interface. When there is an emergency situation, elevator restores to its original state by opening the emergency switch

9. Having the fire signal input interface, when the fire switch signal starts, the system exits the control, and elevator restores to its original state.


    • Related Articles

    • Lock-S Manual / User Guide

      KAS Lock-S Hotel Card Lock Software Module Introduction The KAS Lock-S Software must be activated with Serial number and Product ID. The authorized client must safeguard the unique Product ID assigned. An authorized person should be assigned to take ...
    • Neo Access Control - Installation & Specifications

      Introduction The HAR300 Access Control is most commonly installed in common areas/gates/front doors for accommodation sites. This unit can also be used in conjunction with the Lock-S lift control system as the ID reader. Supporting technologies ...
    • KASAccess - Lock & Gateway Activation

      ASAccess Mobile App & Web Console Gen 2 Lock & Gateway Activation Step 1 - Account Registration Please Note: In order to use KASAccess, you will require a new KASAccess account. Account registration for KASAccess is completed via ...
    • Lock-S - Backing up your database

      Premise In the event of a property handover or as part of your backup routines, the Lock-S database can be backed up to prevent a total system lockout. This ensures that in any event, you will be able to restore your database on a new computer and ...
    • Lock-S - Synchronizing Databases with a second computer

      Premise This guide will provide the basic instructions on how to set up a secondary computer and have it access the same Lock-S database as the main computer. Note: While initial installations are included in the original price, subsequent ...